The TROPIC House – công trình được xây lên với mong muốn của gia chủ về một không gian đủ riêng tư cho các thành viên trong gia đình mà vẫn đảm bảo sự gắn bó, kết nối giữa mọi người.
Văn hóa sống chung nhiều thế hệ trong cùng một ngôi nhà, nhất là ở Sài Gòn đã tạo nên nhiều môi trường sống và lối ứng xử đa dạng.

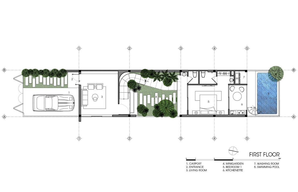
Ngôi nhà có diện tích 5x20m là tổ ấm của gia đình gồm ba mẹ, con trai và con dâu. Yêu cầu đặt ra là cả 2 gia đình đều phải có môi trường sinh hoạt riêng tư, không quá chung nhau nhưng cũng phải có sự kết nối gắn bó với nhau trong căn nhà. Yêu cầu này đã tạo nên ý tưởng thiết kế chính cho căn nhà.


Sau phòng khách là khoảng sân mở lớn cùng cầu thang ngoài trời để lên tầng trên. Bước qua khoảng sân vườn lớn là phòng ngủ ông bà, bếp và bàn ăn nhỏ. Nơi ông bà nghỉ ngơi sinh hoạt đảm bảo sự riêng tư và yên tĩnh.



Cầu thang mở lên tầng tạo cảm giác như một lối lên căn nhà thứ 2 của gia đình nhỏ. Mọi hoạt động sinh hoạt của gia đình trẻ được diễn ra sau cánh cửa lên phòng ăn. Tầng trên nữa là phòng ngủ master và phòng ngủ co




Một điều tuyệt vời nữa ở The TROPIC House là diện tích căn nhà tuy là nhà phố, nhưng sống bên cạnh nhà ba mẹ của vợ (nhà ngoại) nên góc sân được kêt nối với sân nhà bên. Một sự nương nhờ cộng sinh nhưng không ảnh hưởng lẫn nhau của cả một đại gia đình nhiều thế hệ Việt Nam

Tầng trệt bắt đầu bằng gara xe và phòng khách. Đây là không gian chung để ông bà và con cháu gặp gỡ và tiếp xúc nhau hàng ngày.

Nguồn sưu tầm:
- Đơn vị thiết kế: RISOU
- Hình ảnh: Quang Tran
- Bài viết: Kienviet